愛三土地建物株式会社:東京都中野区地元密着で47年。注文住宅、分譲物件、仲介物件、賃貸物件、物件管理業務なら是非お任せ下さい。

愛三土地建物株式会社

ご質問等お気軽にご相談下さい
tel:03-5342-5677
受付時間 10:00~18:00 (水曜日、日曜日、祝日)

お問い合わせ

賃貸物件情報

スカイウエスト 103  |  物件種目: アパート

間取り(面積) 賃料(管理費等)

1K
(24.13㎡)

7.8万円
(2,000円)

所在地: 東京都中野区中野6-2-2 MAP
交 通: JR総武・中央線「東中野」駅 徒歩6分
都営大江戸線「東中野」駅 徒歩6分
東西線「落合」駅 徒歩8分
築年月: 2006年02月
敷 金: 1ヶ月
礼 金: 1か月
保証金:
権利金:
ポイント:

JR総武・中央線「東中野」駅徒歩6分!バス・トイレ別!ウォシュレット完備!2口ガスコンロ完備!角部屋なので2面採光!玄関ダブルロック!

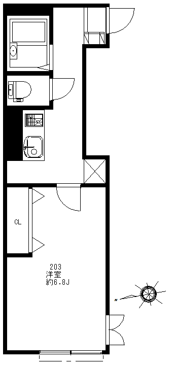
間取り

外観写真

その他写真

間取り(面積) 1K  (24.13㎡)
賃料(管理費等) 7.8万円  (2,000円)
所在地: 東京都中野区中野6-2-2
交 通: JR総武・中央線「東中野」駅 徒歩6分
都営大江戸線「東中野」駅 徒歩6分
東西線「落合」駅 徒歩8分
築年月: 2006年02月
敷 金: 1ヶ月
礼 金: 1か月
保証金:
権利金:
ポイント:

JR総武・中央線「東中野」駅徒歩6分!バス・トイレ別!ウォシュレット完備!2口ガスコンロ完備!角部屋なので2面採光!玄関ダブルロック!

 

MAP

間取り

外観写真

物件所在地 東京都中野区中野6-2-2
交通機関
JR総武・中央線「東中野」駅 徒歩6分
都営大江戸線「東中野」駅 徒歩6分
東西線「落合」駅 徒歩8分
間取り詳細 洋室(6.8J)・K(4.8J)
建物構造 軽量鉄骨造
所在階 2階
部屋向き 西
入居 予定 4月下旬予定
現況 居住中
駐輪場 無  円
設備・特徴 バス・トイレ別 2点ユニットバス 浴室換気乾燥暖房機 トイレ ウォシュレット  システムキッチン 2口コンロ クローゼット シューズボックス 室内洗濯機置き場 室内物干し 給湯器 都市ガス 電気 水道 フローリング エアコン CATV インターホン 照明器具 採光2面以上 角部屋 最上階 閑静な住宅街 最寄駅10分以内
契約区分 普通契約
取引態様 専任媒介
保険等 2年 18,000円
鍵交換 任意  1か所19,800円円
その他費用 契約諸経費:3,300円
保証会社:初回:賃料等合算の50% 月次:賃料等合算の1.5%
備考

お問い合わせ

ぜひお電話でお問い合わせください!
03-5342-5677

営業時間:10:00~18:00
定休日:水曜日、日曜日、祝日

copyright(C) 愛三土地建物株式会社 All right reserved